02 . 557 . 9055
silvermedifr@naver.com
·Î±×ÀÎ
ȸ¿ø°¡ÀÔ
toggle navigation
ȸ»ç¼Ò°³
´ëÇ¥Àλ縻
°æ¿µ¹æÄ§
¸ÞµðÇÁ·»µå ¿¬Çõ
»ç¾÷¿µ¿ª
ÄÁ¼³ÆÃ ½ÇÀû
¶óÀ̼¾½º
¿À½Ã´Â ±æ
º´¿ø»ç¾÷ÄÁ¼³ÆÃ
»ç¾÷¼º °ËÅä
°³¿øÁö¿ø ÄÁ¼³ÆÃ
Àü¹®º´¿ø °³¿ø
ÇØ¿ÜÁøÃâ ÄÁ¼³ÆÃ
º´¿ø°³¹ß¡¤°ÇÃà
¸®¸ðµ¨¸µ ½ÇÀû
¼³°è ½ÇÀû
¸ÞµðÄü¾ÅÍ °³¹ß
¸ÂÃ㺴¿ø
À¯ÈÞÅäÁö °³¹ß
À¯Èްǹ° °³¹ß
ÀÇ·á½Ã¼³ °ÇÃ༳°è
ÀÇ·á½Ã¼³ ¿ëµµº¯°æ
°ÇÃ༳°è ÁøÇà°úÁ¤
º´¿øÀÎÅ׸®¾î
ÀÎÅ׸®¾î ½ÇÀû
ÀÇ·á½Ã¼³ ÀÎÅ׸®¾î
ÀÎÅ׸®¾î ½ºÅ¸ÀÏ ¼³°è
ÀÎÅ׸®¾î ÁøÇà°úÁ¤
½Ã¼³ÇöȲ üũÆ÷ÀÎÆ®
¸Þµð¿ø ÇÁ·ÎÁ§Æ®
¸Þµð¿ø ¼Ò°³
1Â÷ »ç¾÷¼³¸íȸ
2Â÷ »ç¾÷¼³¸íȸ
3Â÷ »ç¾÷¼³¸íȸ
4Â÷ »ç¾÷¼³¸íȸ
5Â÷ »ç¾÷¼³¸íȸ
¸Þµð°ÔÀÌÆ® Çмú ÄÁÆÛ·±½º
¸Þµð¿ø ºÎÆòÁ¡
ÀÇ·á¹ýÀÎ
ÀÇ·á¹ýÀÎ ¼³¸³
ÀÇ·á¼ÒºñÀÚ»ýȰÇùµ¿Á¶ÇÕ
ÀÇ·á»çȸÀûÇùµ¿Á¶ÇÕ
ȸ»ýÀýÂ÷
ÁúÀÇÀÀ´ä
ÁúÀÇ / ÀÀ´ä
º´¿ø ÀÚ·á½Ç
À¯·á ±¤°í µî·Ï
Ç÷¯½º ±¤°í
º¸´Ù ºü¸¥ °è¾àü°á! Ç÷¯½º ±¤°í¸¦ ½ÅûÇϼ¼¿ä!
Ç÷¯½º ±¤°í ½Åû
Á¶È¸¼ö
788
Á¦¸ñ
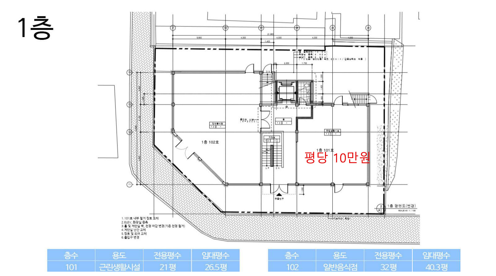
¼öÀ¯¿ª µµº¸ 5ºÐ ¿ÀÆÐ»ê ÅͳΠ»ç°Å¸® ÄÚ³Ê ÇØ¼Öºôµù ÀÓ´ë
´ã´çÀÚ¸í
ÀÌ»ó¿ë
ÀüȹøÈ£
--
¼ÒÀçÁö
¼¿ï °ºÏ±¸ ¹øµ¿ 411-8¹øÁö
À¯Çü
ÀÓ´ë
¿¬¸éÀû / Àü¿ë¸éÀû
280Æò/250Æò
°¡°Ý
±ÇÀå°ú¸ñ
ÇØ´ç Ãþ
Àüü
ÁÖÂ÷ °¡´É ´ë¼ö
7´ë
¿¤¸®º£ÀÌÅÍ À¯¹«
À¯
Áö»ó Ãþ / ÁöÇÏ Ãþ
3Ãþ/1Ãþ
13Àν ¿¤¸®º£ÀÌÅÍ, ¸®¸ðµ¥¸µ ¿Ï·á, º´ÀÇ¿ø ¿ì´ëÇÔ.